Maison avec étage déclinée en 93, 113 ou 130m2
Le 11/06/2015 | Par DEMEURES CALADOISES
Maison avec étage déclinée en 93, 113 ou 130m2
Le 11/06/2015 | Par DEMEURES CALADOISES
Le modèle barbade moderne est une maison de 93m2, 113m2 ou 130m2… selon les attentes de ses propriétaires. son rez-de-chaussée s’ouvre sur un séjour de 27m2 qui donne directement sur une cuisine de 11m2 prolongée de part et d’autre par une terrasse et un cellier de 4m2. accolé à la cuisine et au cellier : le garage auquel on peut accéder depuis la terrasse. à l’étage : place aux chambres… trois au total ! en fonction de sa superficie, cette
Lignes épurées et architecture moderne pour cette villa à étage
Le 02/10/2015 | Par DEMEURES CALADOISES
Maison disponible en deux versions : 120m2 ou 130m2 habitables les plans intérieurs de madère ont été pensés de façon à vous offrir de beaux et vastes espaces de vie, avec très peu de dégagements et de nombreux rangements. dès votre entrée dans la maison, tout est facilement accessible ! passé le porche d’entrée, accédez directement à votre espace salon-salle à manger, un vaste espace jour de 45m2, agréable et lumineux vous offrant une vue
Villa de 160 m2 à étage
Le 02/10/2015 | Par DEMEURES CALADOISES
Maison d’exception et de caractère, baléares est une villa à étage de 160m2 habitables. cette villa à étage jouant sur les décalés est conçue pour vous offrir des espaces de vie agréables. passez le porche d’entrée et découvrez le rez-de-chaussée du modèle baléares. ce dernier s'ouvre sur un grand hall d’entrée agrémenté de vestiaires et desservant agréablement le séjour (situé à votre droite) et l’étage (accessible directement grâce aux escal
Maison à étage simple et élégante avec 4 chambres
Le 05/10/2015 | Par DEMEURES CALADOISES
L'architecture épurée du modèle sicile abrite un agencement rationnel qui privilégie l'espace de vie et les rangements. dès votre entrée dans la maison, tout est facilement accessible. au rez-de-chaussée, un hall dessert les pièces phares de votre demeure : à votre gauche, la cuisine d’environ 12m2 profite d’un cellier/buanderie de 6m2. à sa droite, vous découvrez une vaste pièce de vie (séjour-salon) de 39m2. à gauche de votre pièce de vie, l
Modèle à étage aux lignes épurées
Le 02/10/2015 | Par DEMEURES CALADOISES
Majorque est une demeure de 130m2 dont la superficie est répartie sur deux étages. ses grandes ouvertures, son crépi bicolore et son toit terrasse apportent à majorque un aspect contemporain très séduisant. ses plans fonctionnels distinguant clairement les espaces « jour » et « nuit » sont, quant à eux, plus classiques. passé le porche d’entrée, accédez directement à un grand hall de 6m2 desservant les différents espaces de votre future maiso
Modèle carré et facile à vivre, limbo s'adapte particulièrement bien aux petits terrains.
Le 05/10/2015 | Par Maisons PUNCH
Vous souhaitez faire construire au meilleur prix mais vous refusez de transiger sur la qualité ? limbo est conçu pour vous. ce modèle original d'une surface habitable de 84m2 ne manquera pas d’imagination pour vous plaire et conviendra parfaitement dans votre recherche de construction de maison individuelle. rien n’est plus facile à vivre qu’une maison de plain-pied lorsqu’elle est bien conçue. avec limbo, la priorité est donnée à votre qualit
Modèle de plain-pied contemporain à l’architecture originale de 120m2
Le 05/10/2015 | Par DEMEURES CALADOISES
Côté « jour », dialogue et échange sont facilités grâce à la fluidité de circulation entre les pièces. passé le proche d’entrée, vous profitez directement d’un grand séjour d’environ 44m2 avec une cuisine de 11m2 semi-ouverte pour plus de convivialité. à noter, les wc sont accessibles dès le hall d’entrée. tahiti propose bien sûr de grandes ouvertures pour une luminosité optimale, ouvertures qui vous permettront de disposer pleinement de votre e
Maison moderne de plain-pied
Le 11/06/2015 | Par Maisons PUNCH
Folia, une maison moderne de plain-pied, pensée pour votre confort alliant harmonie des volumes et simplicité. d’une surface habitable de 85m2, cette maison de plain-pied s’adaptera parfaitement à vos envies. passez le porche d’entrée et découvrez votre future habitation… dès l’entrée, vous appréciez l’espace consacré à la family room. cette vaste pièce à vivre d’environ 43m2 accueille une cuisine ouverte ainsi qu’un salon/séjour…une pièce i
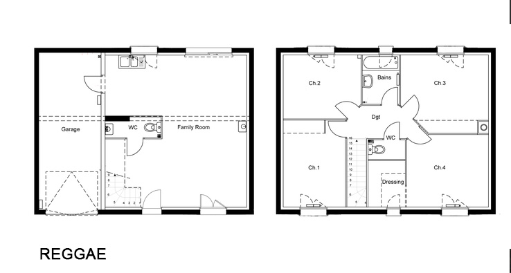
Simple et harmonieux, notre modèle à étage reggae s’intègre à tous les paysages.
Le 05/10/2015 | Par Maisons PUNCH
Petit terrain, terrain de ville, terrain dans un lotissement, reggae s’intègre en toutes circonstances à votre terrain et permet de concilier les attentes de toute la famille. dès le rez-de-chaussée, reggae propose un agencement rationnel qui privilégie l'espace de vie et les rangements. les pièces à vivre sont parfaitement équilibrées. une cuisine spacieuse et un séjour confortable sont prolongés par un garage intégré à votre maison. vous di
Profitez de surfaces incomparables grâce à notre modèle rhodes
Le 02/10/2015 | Par DEMEURES CALADOISES
Répartis sur un seul et même niveau, ses 145m2 vous permettront de profiter de vastes espaces de vie à partager en familles et entre amis. d’architecture moderne, ce plain-pied vous propose des plans fonctionnels. convivialité la journée, calme et repos en soirée…la partie jour et la partie nuit sont bien séparées. faites quelques pas, passez le porche d’entrée, vous êtes chez vous… à votre droite, une vaste pièce de vie avec une cuisine ouver
Choisir un modèle de maison pour faire construire est un choix délicat, car c’est un investissement important et à long terme : il faudra non seulement bien déterminer votre budget, en comptant des frais annexes (équipements, énergie, aménagement, frais de notaire, etc.) mais aussi réfléchir à vos besoins et à l’évolution possible de votre foyer (enfants, travail, etc.). Et bien sûr il s’agit de trouver un modèle de maison dont l’architecture vous plait. Par ailleurs, il vous faut réfléchir aux matériaux que vous privilégiez pour la construction de votre maison (brique, béton, isolation, matériaux écologiques…). Un constructeur propose en général un ou deux modes constructifs différents. Pensez aussi à l’exposition et l’orientation de votre maison en fonction de votre terrain. Et enfin, assurez-vous que le constructeur que vous choisissez est fiable, et notamment qu’il vous propose de signer un contrat de construction de maison individuelle (CCMI) et qu’il dispose de toutes les garanties obligatoires pour vous assurez de faire construire la maison de vos rêves sans problème, ni pendant le chantier, ni après sa réalisation.
Il existe un large choix de plans de maison sur le marché de la construction de maison individuelle. Faire son choix parmi toutes les possibilités d'aménagement et d'architecture peut paraitre compliqué. La clé est de comparer vos envies par rapport aux caractéristiques des différentes gammes de modèles disponibles.
Ma Future Maison a déjà catégorisé pour vous les modèles de maison afin de vous offrir une clarté optimale. Voici par exemple une liste de gamme de maison disponible dans votre périmètre de recherche:
Plans maison Plain-pied
dans le 69
Plans maison Combles (r+combles)
dans le 69
Plans maison A etage (r+1)
dans le 69
Plans maison Traditionnelle
dans le 69
Plans maison Bois
dans le 69
Plans maison Contemporaine - moderne - design
dans le 69
Plans maison Maison d'architecte - haut de gamme
dans le 69
Plans maison Petit budget
dans le 69
Plans maison Familiale
dans le 69
Plans maison Investissement
dans le 69
En complément, il vous serait peut être utile de lire nos dernières actualités sur le sujet des styles et architectures de maison individuelle:
La brique de bois pour une maison innovante
Une façade en bois pour une maison cocooning et moderne
Qu’appelle t-on la maison d’architecte?
Le béton ciré, moderne et tout terrain
La fenêtre PVC, choix numéro un des Français
Le choix du constructeur peut être une étape difficile. Pour mieux s'y retrouver, Ma Future Maison vous propose une liste de catalogues de modèle dans vos critères géographiques :
Catalogue modèle DEMEURES CALADOISES
Catalogue modèle Maisons Clair Logis
Catalogue modèle Maisons PUNCH
Avec Facebook, pas besoin de créer un compte, tout se fait automatiquement alors profitez en.
Ma Future Maison a créé un espace dédié aux particuliers facilitant la recherche dans nos nombreuses annonces et contenus. Cet outil est idéal pour vous lancer correctement dans votre projet de construction:
Décrivez votre projet et contactez gratuitement
nos constructeurs partenaires
Découvrez gratuitement toutes les informations sur les
modèles et les réalisations du partenaire selectionné