| Date | 10/12/2019 |
| Référence | ref-10108092475defa81aca49d |
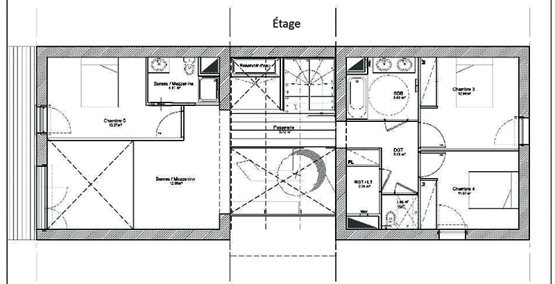
| Surface | 150 m² |
| Nombre de pièces | 6 |
| Nombre de chambres | 4 |
| Nombre de SDB | 2 |
| Etage | 1 étage |
| Garage | Pas de garage |
| Sous-sol | Pas de sous-sol |
| Combles | Pas de combles |
| Gammes | A etage (r+1), Contemporaine - moderne - design, Familiale |
| Zones de construction | 45, 60, 77, 78, 91, 92, 93, 94, 95 |
Faire construire sa maison, c’est aussi trouver le lieu de construction et choisir une gamme de modèles parmi ceux que proposent les constructeurs. Les deux vont de pair, puisque les caractéristiques du terrain sont aussi à prendre en compte dans le choix du modèle, et vice-versa. Les règles d’urbanisme, mais aussi la forme, la surface, la nature du sous-sol et l’orientation du terrain à bâtir ne permettent pas toujours d’y construire n’importe quelle maison. Il est donc important de penser le terrain et la gamme de maison dans le même temps. Ensuite, c’est essentiellement une question d’esthétique et de goût. Gamme classique, gamme contemporaine, maison de plain pied ou à étage, toit plat ou toit en pente… Les constructeurs vous proposent de très nombreux modèles de maisons personnalisables, et certains réalisent aussi des maisons sur mesure. Mis à part certaines restrictions architecturales locales, votre choix dépendra de vos goûts et de vos envies mais aussi de vos besoins à court et à long terme. Pensez en effet que la composition de votre foyer ou votre situation peuvent changer, ou à la revente éventuelle de la maison.
Pour ne rien louper des dernières informations sur les matériaux de construction, l'énergie solaire ou encore sur le domaine maison écologique, n'hésitez pas à lire nos articles gratuits traitant de ces sujets:
La brique de bois pour une maison innovante
De la tuile en terre cuite pour ma toiture
Pompe à chaleur réversible, le deux en un économique
L'isolation répartie, utiliser la structure de votre maison comme isolant
Isoler les sols de sa maison
Voir tout le dossier maison écologique
En relation avec le modèle Terre de BERVAL, vous trouverez ci-dessous des recherches parallèles susceptibles de vous intéresser:
Modèle maison 45
Modèle maison 60
Modèle maison 77
Modèle maison 78
Modèle maison 91
Modèle maison 92
Modèle maison 93
Modèle maison 94
Modèle maison 95
Avec Facebook, pas besoin de créer un compte, tout se fait automatiquement alors profitez en.
Ma Future Maison a créé un espace dédié aux particuliers facilitant la recherche dans nos nombreuses annonces et contenus. Cet outil est idéal pour vous lancer correctement dans votre projet de construction:
Décrivez votre projet et contactez gratuitement
nos constructeurs partenaires
Découvrez gratuitement toutes les informations sur les
modèles et les réalisations du partenaire selectionné