Modèle avec étage et 4 chambres
Le 06/04/2018 | Par Maisons Delmas
Modèle avec étage et 4 chambres
Le 06/04/2018 | Par Maisons Delmas
Découvrez ce ravissant pavillon au style classique et sobre avec son garage attenant qui s’ouvre sur un cellier donnant sur l’espace de vie. rez-de-chaussée disposé comme suit : - 1 entrée - un large séjour - une cuisine - 1 cellier - une chambre - 1 wc l’étage se compose comme suit : - 1 palier - 2 chambres simples - 1 chambre avec sa salle d’eau - 1 salle de bain commune - 1 wc - brique-thermo - isolation au sol au rdc, rag
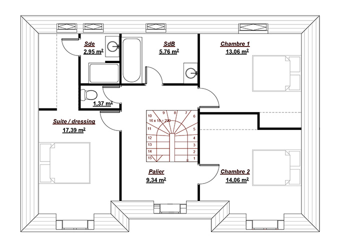
Mansart typique de la région île-de-france avec 4 chambres
Le 23/11/2017 | Par BERVAL
La disposition des pièces et leurs surfaces reste dans l'esprit original du mansart. vous trouverez au rez-de-chaussée une vaste entrée avec placard, un salon séjour de 35m², une cuisine indépendante avec sa verrière et son cellier attenant, un grand bureau pouvant se transformer en chambre d'amis, des toilettes indépendantes et un escalier mis en valeur grâce à sa position centrale. a l'étage, vous trouverez une suite parentale de 20m² av
Modèle en combles aménagés
Le 04/01/2022 | Par Maisons ArchiDesign
Maison en t de 120m² (et bien plus), 4 chambres, 2 salles de bains, avec une avancée en t moderne toit plat ou plus traditionnelle. plans sur mesure déclinables dans toutes les surfaces (de 90 à 300m²), avec garage ou sous-sol, avec tous les parements (pierre, bois...), et avec toutes les options suivant votre cahier des charges. maison haut de gamme à prix compétitifs avec de très belles prestations : maison re 2020, corniche béton, goutt
Maison familiale avec 5 chambres + garage
Le 27/04/2018 | Par Maisons Delmas
Ce grand pavillon à l’architecture intéressante avec ses ouvertures atypiques est parfait pour les grandes familles. le rez-de-chaussée comprend : 1 entrée, 1 grand salon-séjour, une cuisine ouverte, 1 chambre parentale avec dressing et salle d’eau, 1 wc, 1 cellier, 1 garage intégré à l'étage, le palier dessert 3 chambres simples, 1 chambre avec dressing, 1 salle de bain, 1 wc. - brique-thermo - isolation au sol au rdc, ragréage à l'ét
Maison d’architecte contemporaine avec 3 chambres
Le 05/11/2015 | Par TERRE ET DEMEURE
Modèle de la gamme terre & demeure trabeco aux formes ultra modernes, baigné de lumière naturelle grâce à ses nombreuses ouvertures et baies vitrées. le volume intérieur est généreux avec une hauteur sous plafond type cathédrale pouvant atteindre 4 m. retrouvez au rez-de-chaussée ; une entrée avec penderie, un grand séjour de 46 m2, une cuisine ouverte sur le séjour, un cellier, une chambre avec salle d’eau, wc, grand garage, local techniqu
Maison avec combles aménagés, 4 chambres
Le 04/01/2022 | Par Maisons ArchiDesign
Maison de style de 130m² (et bien plus) en l avec une belle hauteur sous plafond. 4 chambres, 2 à 3 salles de bains. plans sur mesure déclinables dans toutes les surfaces (de 90 à 300m²), avec garage ou sous-sol, avec tous les parements (pierre, bois...), et avec toutes les options suivant votre cahier des charges. maison haut de gamme à prix compétitifs avec de très belles prestations : maison re 2020, corniche béton, gouttière aluminium 70
Maison familiale
Le 04/01/2022 | Par Maisons ArchiDesign
Maison en l moderne toit plat ou plus traditionnelle de 120 m² (et bien plus) avec 4 chambres, 2 salles de bains. plans sur mesure déclinables dans toutes les surfaces (de 90 à 300m²), avec garage ou sous-sol, avec tous les parements (pierre, bois...), et avec toutes les options suivant votre cahier des charges. maison haut de gamme à prix compétitifs avec de très belles prestations : maison re 2020, corniche béton, gouttière aluminium 7016,
Modèle avec 4 chambres + garage
Le 03/12/2019 | Par Maisons Pierre
Le modèle boréal comprend au rdc une entrée, une pièce à vivre de près de 53 m² dédiée à la cuisine et au séjour, un wc et un cellier avec accès direct au garage. à l'étage, 4 belles chambres, dont une suite parentale de 17 m² avec salle d’eau, une salle de bains, un wc et rangements. ce modèle est disponible de base avec menuiseries extérieures en bois ou pvc, volets roulants motorisés, enduit gratté, gouttières et descentes de pluie en z
Modèle contemporain avec toit-terrasse, 3 chambres + garage
Le 26/11/2015 | Par Maisons Clairval
Maison moderne très agréable grâce à sa grande terrasse à l'étage. le rez-de-chaussée est composé d'une entrée, une cuisine, un grand salon-séjour traversant de 28m2, wc et garage accolé. a l'étage, un palier avec accès à la terrasse de 15m2, 3 chambres, une salle de bains avec wc.
Belle maison avec combles aménagés - 4 à 6 chambres
Le 05/01/2022 | Par Maisons ArchiDesign
Une maison de style de 140m² (et bien plus) en combles aménagés architecturés, 4 à 6 chambres, 2 à 4 salles de bains, en version toit plat, 4 pans ou 2 pans toujours avec de très belles baies vitrées. plans sur mesure déclinables dans toutes les surfaces (de 90 à 300m²), avec garage ou sous-sol, avec tous les parements (pierre, bois...), et avec toutes les options suivant votre cahier des charges. maison haut de gamme à prix compétitifs avec
Choisir un modèle de maison pour faire construire est un choix délicat, car c’est un investissement important et à long terme : il faudra non seulement bien déterminer votre budget, en comptant des frais annexes (équipements, énergie, aménagement, frais de notaire, etc.) mais aussi réfléchir à vos besoins et à l’évolution possible de votre foyer (enfants, travail, etc.). Et bien sûr il s’agit de trouver un modèle de maison dont l’architecture vous plait. Par ailleurs, il vous faut réfléchir aux matériaux que vous privilégiez pour la construction de votre maison (brique, béton, isolation, matériaux écologiques…). Un constructeur propose en général un ou deux modes constructifs différents. Pensez aussi à l’exposition et l’orientation de votre maison en fonction de votre terrain. Et enfin, assurez-vous que le constructeur que vous choisissez est fiable, et notamment qu’il vous propose de signer un contrat de construction de maison individuelle (CCMI) et qu’il dispose de toutes les garanties obligatoires pour vous assurez de faire construire la maison de vos rêves sans problème, ni pendant le chantier, ni après sa réalisation.
Il existe un large choix de plans de maison sur le marché de la construction de maison individuelle. Faire son choix parmi toutes les possibilités d'aménagement et d'architecture peut paraitre compliqué. La clé est de comparer vos envies par rapport aux caractéristiques des différentes gammes de modèles disponibles.
Ma Future Maison a déjà catégorisé pour vous les modèles de maison afin de vous offrir une clarté optimale. Voici par exemple une liste de gamme de maison disponible dans votre périmètre de recherche:
Plans maison Plain-pied
dans le 95
Plans maison Combles (r+combles)
dans le 95
Plans maison A etage (r+1)
dans le 95
Plans maison Traditionnelle
dans le 95
Plans maison Bois
dans le 95
Plans maison Contemporaine - moderne - design
dans le 95
Plans maison Maison d'architecte - haut de gamme
dans le 95
Plans maison Petit budget
dans le 95
Plans maison Familiale
dans le 95
Plans maison Investissement
dans le 95
En complément, il vous serait peut être utile de lire nos dernières actualités sur le sujet des styles et architectures de maison individuelle:
La brique de bois pour une maison innovante
Une façade en bois pour une maison cocooning et moderne
Qu’appelle t-on la maison d’architecte?
Le béton ciré, moderne et tout terrain
La fenêtre PVC, choix numéro un des Français
Le choix du constructeur peut être une étape difficile. Pour mieux s'y retrouver, Ma Future Maison vous propose une liste de catalogues de modèle dans vos critères géographiques :
Catalogue modèle Belles Demeures
Catalogue modèle BERVAL
Catalogue modèle EA Commercialisation
Catalogue modèle HABITAT PARCOEUR
Catalogue modèle LE BAIL
Catalogue modèle Maison LOL
Catalogue modèle Maisons ArchiDesign
Catalogue modèle MAISONS BARBEY MAILLARD
Catalogue modèle Maisons Clairval
Catalogue modèle Maisons Delmas
Avec Facebook, pas besoin de créer un compte, tout se fait automatiquement alors profitez en.
Ma Future Maison a créé un espace dédié aux particuliers facilitant la recherche dans nos nombreuses annonces et contenus. Cet outil est idéal pour vous lancer correctement dans votre projet de construction:
Décrivez votre projet et contactez gratuitement
nos constructeurs partenaires
Découvrez gratuitement toutes les informations sur les
modèles et les réalisations du partenaire selectionné