Belle maison avec combles aménagés - 4 à 6 chambres
Le 05/01/2022 | Par Maisons ArchiDesign
Belle maison avec combles aménagés - 4 à 6 chambres
Le 05/01/2022 | Par Maisons ArchiDesign
Une maison de style de 140m² (et bien plus) en combles aménagés architecturés, 4 à 6 chambres, 2 à 4 salles de bains, en version toit plat, 4 pans ou 2 pans toujours avec de très belles baies vitrées. plans sur mesure déclinables dans toutes les surfaces (de 90 à 300m²), avec garage ou sous-sol, avec tous les parements (pierre, bois...), et avec toutes les options suivant votre cahier des charges. maison haut de gamme à prix compétitifs avec
Maison d’architecte contemporaine, de la gamme terre & demeure trabeco aux formes très modernes et très esthétique grâce à son lumicene.
Le 17/06/2016 | Par TERRE ET DEMEURE
Maison très spacieuse avec de grands volumes, de nombreuses baies vitrées et surtout le lumicene, cette maison est baignée de lumière naturelle. au rez-de-chaussée : belle entrée avec vestiaire et wc, grand séjour transversal de 56 m2 avec une baie coulissante type lumicene, cuisine, remise, bureau, suite parentale avec salle d’eau et dressing, local poubelle et double garage . à l’étage : le palier en mezzanine distribue 3 belles chambres
Grande maison familiale à partir de 120m²
Le 07/01/2022 | Par Maisons ArchiDesign
Modèle à étage de 120m² ou plus avec de beaux volumes et décrochés ainsi que de très grandes baies vitrées. au choix : 4 à 6 chambres, 2 à 4 salles de bains. version toit plat, 4 pans ou 2 pans. maison haut de gamme à prix compétitifs avec de très belles prestations : maison re 2020, corniche béton, gouttière aluminium 7016, enduit gratté, mur en brique haute performance, cloison acoustique avec laine minérale, portes intérieurs aspect bois a
Modèle contemporain de plain-pied
Le 06/04/2018 | Par Maisons Delmas
Le modèle isabel 2 frappe tout d’abord par son style moderne et atypique notamment son large toit qui fait le long du pavillon. composé de grands espaces libres, ces larges ouvertures vous offrirons une lumière traversante. ce plain-pied est distribué de la façon suivante : - une entrée - un grand salon-séjour - un espace salle à manger - une cuisine avec un espace de rangement et un cellier - un bureau - 3 chambres dont une avec sa sall
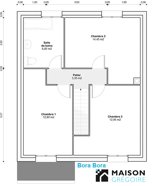
Maison à étage avec 3 chambres + garage. idéal primo accédant
Le 29/03/2016 | Par Maisons Grégoire
Modèle r + 1 sur vide sanitaire, élégant grâce à son avancée pour intégrer le garage. une surface bien étudié avec une distribution bien agencée comprenant au rez de chaussée : cuisine ouverte sur un séjour de 29m2, un local technique pour loger les appareils de chauffage et de production d’eau chaude, les toilettes et un garage. a l’étage : 1 palier desservant 3 belles chambres (12,80 m2, 12,95 m2 et 14,45 m2), 1 salle de bains avec toilet
Maison de style de 160m²
Le 05/01/2022 | Par Maisons ArchiDesign
Modèle avec combles aménagés et de grandes baies vitrées. toiture au choix : toit plat, 4 pans ou 2 pans. avec 4 à 6 chambres et 2 à 4 salles de bains. plans sur mesure déclinables dans toutes les surfaces (de 90 à 300m²), avec garage ou sous-sol, avec tous les parements (pierre, bois...), et avec toutes les options suivant votre cahier des charges. maison haut de gamme à prix compétitifs avec de très belles prestations : maison re 2020, cor
Maison moderne aux volumes cubiques de 145m²
Le 27/02/2017 | Par BERVAL
Cette maison moderne aux volumes cubiques offre une surface habitable de 145m² sur 2 niveaux. le rez de chaussée se compose d'un salon/séjour/cuisine ouverte de plus de 50m², d'un cellier, d'un bureau et d'une suite parentale de plus de 20m². l'étage vous offre 3 chambres, une salle de bains et une superbe terrasse de 33 m². a chaque niveau, vous trouverez des toilettes indépendantes. son jeu d'enduits blanc et bleu ainsi que son pareme
Grande maison à étage de 120m²
Le 07/01/2022 | Par Maisons ArchiDesign
Modèle de 120m² (ou plus), avec 4 à 6 chambres, 2 à 4 salles de bains, proposée en version toit plat, 4 pans ou 2 pans et toujours de belles baies vitrées. maison haut de gamme à prix compétitifs avec de très belles prestations : maison re 2020, corniche béton, gouttière aluminium 7016, enduit gratté, mur en brique haute performance, cloison acoustique avec laine minérale, portes intérieurs aspect bois aux choix, carrelage grands carreaux, san
Maison avec combles aménagés en harmonie avec une architecture régionale.
Le 11/06/2015 | Par Maisons Delmas
Disposant d’une architecture traditionnelle le modèle saint-raphael se démarque grâce à sa façade en brique et ses larges ouvertures. son rez-de-chaussée se découpe en : - une entrée donnant directement sur le salon-séjour - une cuisine - un cellier - une chambre parentale avec dressing et salle d’eau - un wc à l’étage, vous découvrirez : - 1 palier - 3 grandes chambres - une salle de bain - un wc l’ensemble des prestations ci
Maison avec étage de 120m²
Le 07/01/2022 | Par Maisons ArchiDesign
Une maison à étage de 120m² (et bien plus) avec de belles baies vitrées, 4 à 6 chambres, 2 à 4 salles de bains, en version toit plat, 4 pans ou 2 pans. maison haut de gamme à prix compétitifs avec de très belles prestations : maison re 2020, corniche béton, gouttière aluminium 7016, enduit gratté, mur en brique haute performance, cloison acoustique avec laine minérale, portes intérieurs aspect bois aux choix, carrelage grands carreaux, sanitai
Choisir un modèle de maison pour faire construire est un choix délicat, car c’est un investissement important et à long terme : il faudra non seulement bien déterminer votre budget, en comptant des frais annexes (équipements, énergie, aménagement, frais de notaire, etc.) mais aussi réfléchir à vos besoins et à l’évolution possible de votre foyer (enfants, travail, etc.). Et bien sûr il s’agit de trouver un modèle de maison dont l’architecture vous plait. Par ailleurs, il vous faut réfléchir aux matériaux que vous privilégiez pour la construction de votre maison (brique, béton, isolation, matériaux écologiques…). Un constructeur propose en général un ou deux modes constructifs différents. Pensez aussi à l’exposition et l’orientation de votre maison en fonction de votre terrain. Et enfin, assurez-vous que le constructeur que vous choisissez est fiable, et notamment qu’il vous propose de signer un contrat de construction de maison individuelle (CCMI) et qu’il dispose de toutes les garanties obligatoires pour vous assurez de faire construire la maison de vos rêves sans problème, ni pendant le chantier, ni après sa réalisation.
Il existe un large choix de plans de maison sur le marché de la construction de maison individuelle. Faire son choix parmi toutes les possibilités d'aménagement et d'architecture peut paraitre compliqué. La clé est de comparer vos envies par rapport aux caractéristiques des différentes gammes de modèles disponibles.
Ma Future Maison a déjà catégorisé pour vous les modèles de maison afin de vous offrir une clarté optimale. Voici par exemple une liste de gamme de maison disponible dans votre périmètre de recherche:
Plans maison Plain-pied
dans le 95
Plans maison Combles (r+combles)
dans le 95
Plans maison A etage (r+1)
dans le 95
Plans maison Traditionnelle
dans le 95
Plans maison Bois
dans le 95
Plans maison Contemporaine - moderne - design
dans le 95
Plans maison Maison d'architecte - haut de gamme
dans le 95
Plans maison Petit budget
dans le 95
Plans maison Familiale
dans le 95
Plans maison Investissement
dans le 95
En complément, il vous serait peut être utile de lire nos dernières actualités sur le sujet des styles et architectures de maison individuelle:
La brique de bois pour une maison innovante
Une façade en bois pour une maison cocooning et moderne
Qu’appelle t-on la maison d’architecte?
Le béton ciré, moderne et tout terrain
La fenêtre PVC, choix numéro un des Français
Le choix du constructeur peut être une étape difficile. Pour mieux s'y retrouver, Ma Future Maison vous propose une liste de catalogues de modèle dans vos critères géographiques :
Catalogue modèle Belles Demeures
Catalogue modèle BERVAL
Catalogue modèle EA Commercialisation
Catalogue modèle HABITAT PARCOEUR
Catalogue modèle LE BAIL
Catalogue modèle Maison LOL
Catalogue modèle Maisons ArchiDesign
Catalogue modèle MAISONS BARBEY MAILLARD
Catalogue modèle Maisons Clairval
Catalogue modèle Maisons Delmas
Avec Facebook, pas besoin de créer un compte, tout se fait automatiquement alors profitez en.
Ma Future Maison a créé un espace dédié aux particuliers facilitant la recherche dans nos nombreuses annonces et contenus. Cet outil est idéal pour vous lancer correctement dans votre projet de construction:
Décrivez votre projet et contactez gratuitement
nos constructeurs partenaires
Découvrez gratuitement toutes les informations sur les
modèles et les réalisations du partenaire selectionné