Modèle contemporain rt2012 avec terrasse et 3 chambres
Le 11/06/2015 | Par MTLF
Modèle contemporain rt2012 avec terrasse et 3 chambres
Le 11/06/2015 | Par MTLF
Maison moderne présentant de beaux volumes : entrée, cuisine ouverte sur grand séjour, 3 chambres, salle de bain, 2 wc, local technique, garage, terrasse. le modèle shanghai est proposé à partir de 204365 euros hors terrain hors raccordement hors branchement (eau, gaz et électricité) hors décoration (papier peint, peinture, carrelage ...)hors terrain, raccordement, branchement, décoration.
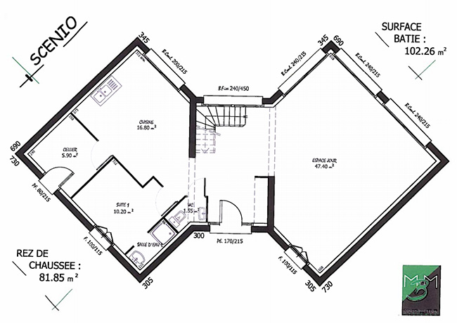
Maison traditionnelle familiale avec 4 chambres et double garage
Le 18/02/2016 | Par Maisons Clairval
Le rez-de-chaussée se compose d'une entrée, cuisine ouverte sur double séjour de 47m2, une chambre avec salle d'eau, wc, cellier avec accès à la cuisine et au double garage de 26m2. à l'étage, le palier dessert une suite parentale avec dressing et salle d'eau, 2 chambres, un bureau, une salle de bains, wc indépendants.
Modèle contemporain à étage
Le 10/06/2024 | Par EA Commercialisation
Maison contemporaine avec étage et garage accolé, qui allie modernité et tradition régionale. au rez de chaussée, entrée, grand espace jour de 50 m2 avec cellier, 1 chambre, 1 salle d'eau, wc, garage. à l'étage, suite parentale avec dressing et salle d'eau, 2 chambres, salle de bains, wc. cette ligne est bien adaptée aux contraintes urbaines grâce à une conception et à une architecture optimisées pour profiter pleinement de son terrain en tou
Maison d’architecte originale, spacieuse et lumineuse
Le 26/06/2015 | Par MAISONS BARBEY MAILLARD
Le rez-de-chaussée comporte une entrée, à droite, une grande pièce de 47m2, à gauche de l'entrée, une cuisine de 16m2, une suite avec salle d'eau privative, un cellier et 1 wc indépendant. a l’étage, une grande mezzanine permet d’accueillir un pôle multimédia et dessert deux chambres et une salle de bains, de l'autre côté, une belle suite parentale avec salle d'eau et wc indépendants
Bien-être et élégance pour cette maison contemporaine au design architectural.
Le 11/06/2015 | Par MAISONS BARBEY MAILLARD
Le rez-de-chaussée abrite un espace jour très lumineux de 53 m2 composé d'une cuisine ouverte sur séjour-repas, qu'une suite parentale avec salle d'eau privée vient compléter. l' étage s'ouvre sur un espace nuit parfaitement organisé avec une 2ème suite parentale très spacieuse avec salle de bain privée et dressing, 2 autres chambres, 1 salle d'eau et 1 wc séparé.
Maison bien conçue, très économique à l'achat et personnalisable grâce à des packs décor que nous vous proposons.
Le 11/06/2015 | Par Maison LOL
Ce modèle avec combles aménagés est composé au rez-de-chaussée : cuisine, 1 salon-séjour de 36m2, 1 chambre, 1wc et 1 garage accolé. à l'étage, 4 chambres, 1 salle de bains avec wc, 1 salle d'eau. modèle décliné en 7 versions.
Charmante maison avec combles aménagés - 4 chambres
Le 11/06/2015 | Par Maisons LDT
Entrée, cuisine ouverte sur salon-séjour, 4 chambres dont une au rez-de-chaussée, 2 salles de bain, 2 wc, sous-sol en option. ce modèle est également disponible avec un garage et 3 chambres pour une surface de 104m2.
Jolie maison traditionnelle avec 3 chambres.
Le 11/06/2015 | Par BERVAL
Modèle traditionnel en l, la maison fontenoy 119 offre une surface habitable de 119 m² répartie sur 2 niveaux. le rez-de-chaussée comprend une belle entrée, un salon-séjour de plus de 35m², une cuisine semi-ouverte qui pourra accueillir une verrière intérieure, un bureau et des toilettes indépendantes. à l'étage, 3 chambres dont 1 avec dressing, une lingerie, une salle de bain, des toilettes indépendantes.
Citadine et moderne, cette maison est très fonctionnelle et peut s'adapter à des terrains ayant une façade réduite.
Le 11/06/2015 | Par MAISONS BARBEY MAILLARD
Au rez-de-chaussée, vous trouverez l'espace jour, avec son entrée, une cuisine fermée un beau séjour-repas, 1 wc et le garage intégré. a l'étage, l'espace nuit, avec 4 chambres agrémentées de placards, 1 salle de bains ainsi qu'1 wc séparé. modèle économique proposé en plusieurs versions (3, 4 ou 5 chambres)
Modèle de plain-pied idéal 1ère acquisition
Le 11/06/2015 | Par HABITAT PARCOEUR
Par sa simplicité et l'harmonie de ses volumes, le modèle paris vous offre, sur un seul et même niveau, un vrai confort de vie au quotidien. conviviale et fonctionnelle, elle sait s'adapter à tous les lieux et tous les styles de vie ! séjour + cuisine : 31,85 m2 chambre 1 : 11,01 m2 chambre 2 : 10,09 m2 chambre 3 : 9,97 m2 wc : 1,96 m2 salle de bains : 5,58 m2 local technique : 3,24 m2 dégagement : 3,70 m2 total hab. : 77,40 m2
Choisir un modèle de maison pour faire construire est un choix délicat, car c’est un investissement important et à long terme : il faudra non seulement bien déterminer votre budget, en comptant des frais annexes (équipements, énergie, aménagement, frais de notaire, etc.) mais aussi réfléchir à vos besoins et à l’évolution possible de votre foyer (enfants, travail, etc.). Et bien sûr il s’agit de trouver un modèle de maison dont l’architecture vous plait. Par ailleurs, il vous faut réfléchir aux matériaux que vous privilégiez pour la construction de votre maison (brique, béton, isolation, matériaux écologiques…). Un constructeur propose en général un ou deux modes constructifs différents. Pensez aussi à l’exposition et l’orientation de votre maison en fonction de votre terrain. Et enfin, assurez-vous que le constructeur que vous choisissez est fiable, et notamment qu’il vous propose de signer un contrat de construction de maison individuelle (CCMI) et qu’il dispose de toutes les garanties obligatoires pour vous assurez de faire construire la maison de vos rêves sans problème, ni pendant le chantier, ni après sa réalisation.
Il existe un large choix de plans de maison sur le marché de la construction de maison individuelle. Faire son choix parmi toutes les possibilités d'aménagement et d'architecture peut paraitre compliqué. La clé est de comparer vos envies par rapport aux caractéristiques des différentes gammes de modèles disponibles.
Ma Future Maison a déjà catégorisé pour vous les modèles de maison afin de vous offrir une clarté optimale. Voici par exemple une liste de gamme de maison disponible dans votre périmètre de recherche:
Plans maison Plain-pied
dans le 95
Plans maison Combles (r+combles)
dans le 95
Plans maison A etage (r+1)
dans le 95
Plans maison Traditionnelle
dans le 95
Plans maison Bois
dans le 95
Plans maison Contemporaine - moderne - design
dans le 95
Plans maison Maison d'architecte - haut de gamme
dans le 95
Plans maison Petit budget
dans le 95
Plans maison Familiale
dans le 95
Plans maison Investissement
dans le 95
En complément, il vous serait peut être utile de lire nos dernières actualités sur le sujet des styles et architectures de maison individuelle:
La brique de bois pour une maison innovante
Une façade en bois pour une maison cocooning et moderne
Qu’appelle t-on la maison d’architecte?
Le béton ciré, moderne et tout terrain
La fenêtre PVC, choix numéro un des Français
Le choix du constructeur peut être une étape difficile. Pour mieux s'y retrouver, Ma Future Maison vous propose une liste de catalogues de modèle dans vos critères géographiques :
Catalogue modèle Belles Demeures
Catalogue modèle BERVAL
Catalogue modèle EA Commercialisation
Catalogue modèle HABITAT PARCOEUR
Catalogue modèle LE BAIL
Catalogue modèle Maison LOL
Catalogue modèle Maisons ArchiDesign
Catalogue modèle MAISONS BARBEY MAILLARD
Catalogue modèle Maisons Clairval
Catalogue modèle Maisons Delmas
Avec Facebook, pas besoin de créer un compte, tout se fait automatiquement alors profitez en.
Ma Future Maison a créé un espace dédié aux particuliers facilitant la recherche dans nos nombreuses annonces et contenus. Cet outil est idéal pour vous lancer correctement dans votre projet de construction:
Décrivez votre projet et contactez gratuitement
nos constructeurs partenaires
Découvrez gratuitement toutes les informations sur les
modèles et les réalisations du partenaire selectionné