Ce modèle au design architectural avec toiture plate bénéficie de beaux espaces de vie baignés de lumière
Le 11/06/2015 | Par Maison LOL
Ce modèle au design architectural avec toiture plate bénéficie de beaux espaces de vie baignés de lumière
Le 11/06/2015 | Par Maison LOL
Elle bénéficie d'une cuisine ouverte sur salon-séjour de 38m2, wc, garage à l'étage, 3 chambres, 1 salle de bain, wc. ce modèle se décline en versions 3 chambres ou 4 chambres dont 1 grande suite parentale.
Modèle avec étage - 4 chambres + garage
Le 11/06/2015 | Par MTLF
Maison avec étage comprenant entrée, cuisine ouverte sur séjour-repas, 4 chambres, salle de bain, 2 wc, local technique, garage intégré. à partir de 164347 euros hors terrain, raccordement, branchement, décoration. tous les plans de la maison venette peuvent être modifiés à souhait grâce à notre bureau d'architecture que ce soit extérieurs ou intérieurs
Maison traditionnelle avec 4 chambres + garage
Le 11/06/2015 | Par Maisons Clairval
Maison avec étage. de la gamme astoriale. au rez de chaussée : cuisine ouverte sur séjour de 31m2, 1 chambre avec salle d'eau, wc, cellier avec accès à la cuisine et au garage accolé de 13 m2. à l'étage, le palier dessert 3 belles chambres dont 1 avec dressing, salle de bains, wc.
Maison familiale haut de gamme aux lignes très modernes.
Le 11/06/2015 | Par Maisons Clairval
Au rez-de-chaussée, entrée, cuisine avec cellier, grand séjour de 43 m2, chambre avec salle d'eau privative, wc séparé, garage. a l'étage, le palier dessert 2 chambres, la salle de bains, les wc ainsi qu'une grande suite parentale avec salle de bains privée, roberie et balcon.
Mezzanine, bureau, suite parentale, beaucoup d'atouts pour cette belle maison avec combles aménagés.
Le 11/06/2015 | Par Belles Demeures
Maison avec combles aménagés comprenant une entrée, cuisine ouverte sur séjour-repas, bureau, 3 chambres dont une suite parentale avec dressing et salle de bain privée, mezzanine de 11m2, salle de bain, 2wc, cellier.
Grande maison de famille lumineuse avec une façade harmonieuse et une toiture quatre pans.
Le 11/06/2015 | Par BERVAL
Le rez-de-chaussée dispose d'une entrée accueillante, un bureau, un vaste séjour / salon avec accès direct à la cuisine et son cellier, toilette indépendantes. à l'étage, une mezzanine conviviale autour de laquelle vous trouvez une suite parentale avec dressing et salle d'eau privative, deux chambres et une salle de bains, toilettes indépendantes.
Maison de famille présente une façade harmonieuse et lumineuse avec une toiture quatre pans.
Le 27/02/2017 | Par BERVAL
La dauphine 110 vous offre au rez-de-chaussée un espace salon/séjour et cuisine ouverte de plus de 30m², un bureau ainsi qu'un cellier, des wc indépendants et une vaste entrée. a l'étage, la dauphine 110 vous offre une salle de bains, 2 chambres ainsi qu'une suite parentale avec dressing et salle d'eau. ce modèle existe également en 130 et 150m²
Belle demeure traditionnelle avec combles aménagés et un immense séjour.
Le 11/06/2015 | Par Belles Demeures
Belle demeure traditionnelle avec combles aménagés : grande entrée, cuisine ouverte sur immense salon-séjour de 64m2, bureau, 5 chambres dont une suite parentale avec salle de bain privative et grand dressing de 14m2, salle de bain, salle d'eau, 2 wc, cellier.
Très belle maison contemporaine à étage.
Le 11/06/2015 | Par BERVAL
La trocadero 140 vous offre au rez-de-chaussée un espace salon/séjour et cuisine ouverte de plus de 50m², une entrée avec rangements, un bureau ou une chambre ainsi qu'un cellier et des wc indépendants. a l'étage, elle vous offre une salle de bains, des toilettes indépendantes, 3 chambres ainsi qu'une suite parentale avec salle d'eau.
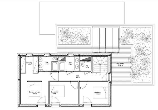
Grande maison unique, originale et adaptable
Le 23/07/2021 | Par BERVAL
Maison familiale à toit plat proposée en 2 versions (plexiglas ou bois) le rez-de-chaussée est composé d'une entrée, des pièces de vie et d'une chambre avec salle de bains, une terrasse et un garage. à l'étage, 3 chambres dont une suite parentale, 2 salles de bains, wc
Choisir un modèle de maison pour faire construire est un choix délicat, car c’est un investissement important et à long terme : il faudra non seulement bien déterminer votre budget, en comptant des frais annexes (équipements, énergie, aménagement, frais de notaire, etc.) mais aussi réfléchir à vos besoins et à l’évolution possible de votre foyer (enfants, travail, etc.). Et bien sûr il s’agit de trouver un modèle de maison dont l’architecture vous plait. Par ailleurs, il vous faut réfléchir aux matériaux que vous privilégiez pour la construction de votre maison (brique, béton, isolation, matériaux écologiques…). Un constructeur propose en général un ou deux modes constructifs différents. Pensez aussi à l’exposition et l’orientation de votre maison en fonction de votre terrain. Et enfin, assurez-vous que le constructeur que vous choisissez est fiable, et notamment qu’il vous propose de signer un contrat de construction de maison individuelle (CCMI) et qu’il dispose de toutes les garanties obligatoires pour vous assurez de faire construire la maison de vos rêves sans problème, ni pendant le chantier, ni après sa réalisation.
Il existe un large choix de plans de maison sur le marché de la construction de maison individuelle. Faire son choix parmi toutes les possibilités d'aménagement et d'architecture peut paraitre compliqué. La clé est de comparer vos envies par rapport aux caractéristiques des différentes gammes de modèles disponibles.
Ma Future Maison a déjà catégorisé pour vous les modèles de maison afin de vous offrir une clarté optimale. Voici par exemple une liste de gamme de maison disponible dans votre périmètre de recherche:
Plans maison Plain-pied
dans le 95
Plans maison Combles (r+combles)
dans le 95
Plans maison A etage (r+1)
dans le 95
Plans maison Traditionnelle
dans le 95
Plans maison Bois
dans le 95
Plans maison Contemporaine - moderne - design
dans le 95
Plans maison Maison d'architecte - haut de gamme
dans le 95
Plans maison Petit budget
dans le 95
Plans maison Familiale
dans le 95
Plans maison Investissement
dans le 95
En complément, il vous serait peut être utile de lire nos dernières actualités sur le sujet des styles et architectures de maison individuelle:
La brique de bois pour une maison innovante
Une façade en bois pour une maison cocooning et moderne
Qu’appelle t-on la maison d’architecte?
Le béton ciré, moderne et tout terrain
La fenêtre PVC, choix numéro un des Français
Le choix du constructeur peut être une étape difficile. Pour mieux s'y retrouver, Ma Future Maison vous propose une liste de catalogues de modèle dans vos critères géographiques :
Catalogue modèle Belles Demeures
Catalogue modèle BERVAL
Catalogue modèle EA Commercialisation
Catalogue modèle HABITAT PARCOEUR
Catalogue modèle LE BAIL
Catalogue modèle Maison LOL
Catalogue modèle Maisons ArchiDesign
Catalogue modèle MAISONS BARBEY MAILLARD
Catalogue modèle Maisons Clairval
Catalogue modèle Maisons Delmas
Avec Facebook, pas besoin de créer un compte, tout se fait automatiquement alors profitez en.
Ma Future Maison a créé un espace dédié aux particuliers facilitant la recherche dans nos nombreuses annonces et contenus. Cet outil est idéal pour vous lancer correctement dans votre projet de construction:
Découvrez gratuitement toutes les informations sur les
modèles et les réalisations du partenaire selectionné