Vous cherchez un modèle de maison qui s’adapte à vos besoins et qui soit également durable et conforme aux tendances actuelles en matière de construction et d’esthétique ? Le modèle Signature de Maisons Logelis est fait pour vous ! Cette maison à ossature bois est conçue pour répondre à la fois aux envies des acquéreurs et aux normes de la construction d’une maison neuve.
Disponible en 3 versions différentes, avec un principe constructif innovant et écologique, elle est modulable : sa surface et le nombre de pièces sont adaptables en fonction de vos besoins et de votre budget.

Une maison qui s’adapte à ses habitants
Le modèle Signature est disponible en 3 déclinaisons adaptables :
- une version de plain-pied avec 2 chambres de 100 m²
- une version de plain-pied avec 3 chambres de 127 m²
- une version à étage avec 4 chambres de 138 m²
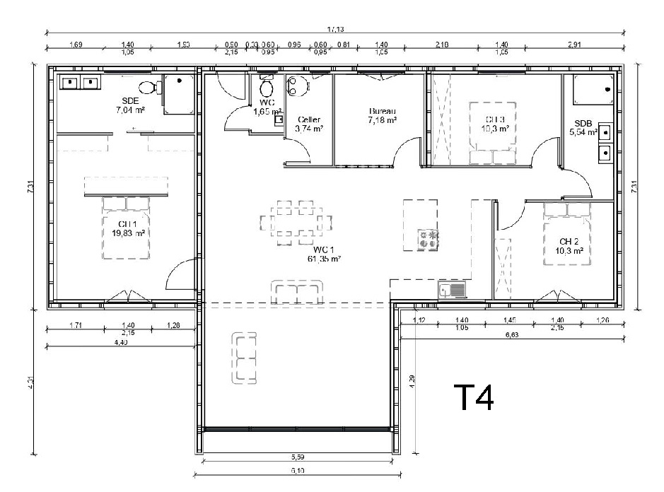
Ces trois versions offrent un plan modulable qui dans tous les cas conserve ses principaux atout : les pièces à vivre sont rassemblées dans un même volume très spacieux et lumineux, et les chambres sont situés à l’écart, pour la tranquillité et l’intimité de chacun dans la maison.
Les trois versions de ce modèle comportent un séjour de plus de 60 m² avec une cuisine ouverte et de grandes ouvertures. Et notamment, une baie vitrée gigantesque et très originale, qui couvre toute la façade arrière, pour faire entrer la lumière naturelle et profiter au mieux de l’espace.
De part et d’autre de cet espace selon la surface, on trouve les pièces de nuit, chambres et salles de bain, séparées des espaces de vie commune :
Dans le modèle avec 2 chambres, celles-ci sont situées derrière la cuisine, avec une salle de bain.

Dans le modèle avec 3 chambres, même configuration, plus une suite parentale située à l’opposé du séjour, avec une salle de bain privative.

Dans le modèle avec 4 chambres, qui comporte un étage, on trouve 3 chambres et une salle de bain au niveau haut et une suite parentale avec un grand dressing (9 m²) et une salle de bain au niveau bas.


Un bureau complète les chambres, pour le télétravail ou pour un tout autre usage qui vous conviendrait. Une pièce en plus, ce n’est pas négligeable !
Enfin, un cellier permet de loger les appareils et autres objets disgracieux, et ainsi d’optimiser l’usage et le confort dans le séjour.
Une architecture contemporaine et durable
Une architecture élégante et contemporaine
Construite de plain-pied ou en étage, la maison Signature a des volumes très équilibrés. Avec sa structure en « T » en deux volumes son architecture est à la fois relativement simple et donc modulable mais aussi harmonieuse.
Quelle que soit la version, l’équilibre des volumes, la façade vitrée et le bardage bois s’accordent entre eux.
L’avancée de la façade arrière vers l’extérieur, laissant apparaître la charpente de son ossature bois par son immense baie vitrée, lui confère une apparence unique et très élégante.

Par ailleurs, l’habillage des façades en bardage bois, qui se combine parfaitement avec la façade vitrée et sa forme en T, sans l’alourdir, est à la fois très tendance et très séduisant, tout en s’adaptant à tous les types d’environnement et toutes les régions.
Une maison à ossature bois en avance sur la rélementation
Par ailleurs, les maisons Logelis sont construites selon un mode constructif particulier, écologique et durable. Conformes non seulement à la réglementation thermique en vigueur, la RT 2012, mais aussi à la réglementation à venir, la RE 2020, ce sont des maisons très bien isolées, dans lesquelles la lumière est à l’honneur, construites avec des matériaux « propres » et selon des procédés intégrés rapides et efficaces.
La maison Signature est une maison à ossature bois. Les murs préfabriqués Logiwall© sont confectionnés en usine et assemblés sur le chantier, ce qui permet une maîtrise des coûts, du temps et de la réalisation.

♦

La maison Signature de Maisons Logelis a tout pour plaire : une architecture hors du commun et actuelle, une construction en avance sur la réglementation et un aménagement intérieur optimisé, modulable et pensé pour le confort.